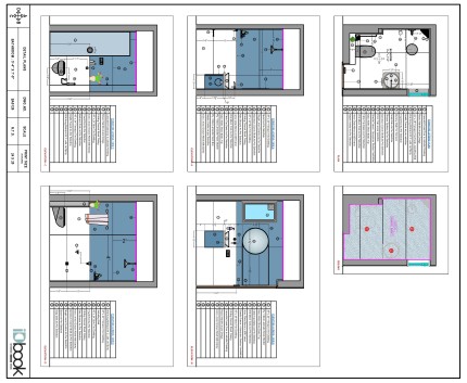
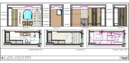
Classy luxurious material palate bathroom has an extensive blend of black Italian marble finish tile Cladding with a neutral Grey coloured tile with the simple vertical grooved pattern on the central wall which continues in flooring. The look and feel of this bathroom is a modern neoclassical concept based material palate which develops mesmerizing modern ambience.
2,499
2,199.00
1,999.00
1,999.00
2,499.00
2,199.00
1,999.00
1,699.00
2,199.00
1,999.00
1,999.00
2,999.00
1,999.00
2,499.00
1,699.00
2,999.00
2,499.00