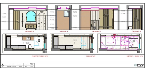
This bathroom is a refined modern sanctuary defined by sculptural geometry and rich natural textures. Dramatic marble surfaces with bold veining wrap the walls and vanity, creating a sense of depth and timeless luxury.The floating stone vanity and wall-hung toilet enhance the feeling of openness, while precise black fixtures add a sharp, contemporary contrast. A softly illuminated arched mirror becomes the focal point, introducing warmth and elegance while echoing the curved motifs subtly carved into the wall panels. Vertical lines and concealed storage emphasize height and order, giving the space a calm, architectural rhythm.Warm ambient lighting, paired with minimalist décor and natural accents, transforms the room into a spa-like retreat—where modern design meets quiet sophistication.The result is a bathroom that feels intimate, luxurious, and meticulously curated, balancing strength and serenity in equal measure.
1,999
2,199.00
1,999.00
2,499.00
1,999.00
2,499.00
1,699.00
2,999.00
1,699.00
1,699.00
1,999.00
2,999.00
2,499.00
1,999.00
1,999.00
1,699.00
1,999.00