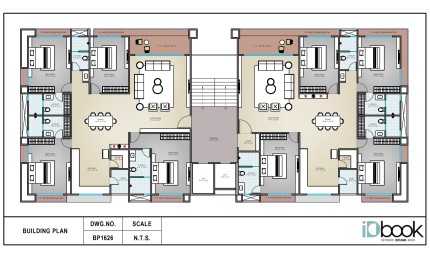
The building plan consists of 2 flats on the same floor with 1149 sq.ft. carpet area. The Design of the residence is done in a very simple concept that from the entrance there is a clear circulation axis toward the spacious living room and kitchen at the same time. The dining has been placed at the center of all other areas as it acts as a gathering junction for family. The singular flat has 3 BHK with all the required facilities.
499
199.00
199.00
499.00
199.00
199.00
499.00
199.00
199.00
199.00
199.00
199.00
499.00
149.00
149.00
499.00