IDBook
0
IDBook

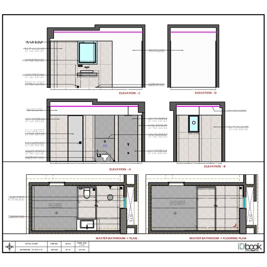
Soft Grain Bathroom

A warm and inviting bathroom designed around natural wood tones and soft, earthy textures. Wood-finish wall panels and a matching ceiling create a cohesive, cozy atmosphere, balanced by stone-look flooring for durability and contrast. The floating vanity with a sleek countertop basin keeps the space light and uncluttered, while subtle lighting and clean-lined fittings enhance the contemporary feel. Thoughtful detailing and natural materials come together to create a calm, refined space that feels both modern and comforting—ideal for everyday luxury living.

Category

Related Plans

Write a review

       
Design a plan with us