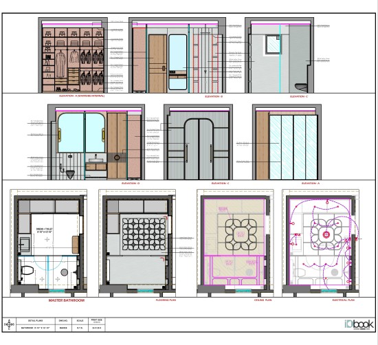
Aquarca Sanctum is a contemporary luxury suite designed as a seamless fusion of bath, shower, and wardrobe spaces.The design is anchored by striking aqua-blue marble accents, framed by warm white marble surfaces with subtle gold veining, creating a balanced palette of elegance and calm.Arched glass partitions and softly contoured mirrors introduce architectural fluidity, while concealed LED lighting enhances depth and highlights material textures without overpowering the space. The floating vanity and integrated storage maintain visual lightness, reinforcing the clean, modern aesthetic.The shower zone features sculpted stone niches with ambient illumination, combining functionality with spa-like serenity. Transparent glass wardrobes extend the luxury language beyond the bathroom, offering a boutique dressing experience that feels open, refined, and curated.Every element—from the linear floor patterns to the minimalist fittings—has been thoughtfully composed to deliver a tranquil, hotel-inspired retreat that celebrates craftsmanship, material harmony, and timeless modern design.
2,499
2,199.00
1,999.00
2,499.00
1,999.00
2,499.00
1,699.00
2,999.00
1,699.00
1,699.00
1,999.00
2,999.00
2,499.00
1,999.00
1,999.00
1,699.00
1,999.00