IDBook
0
IDBook

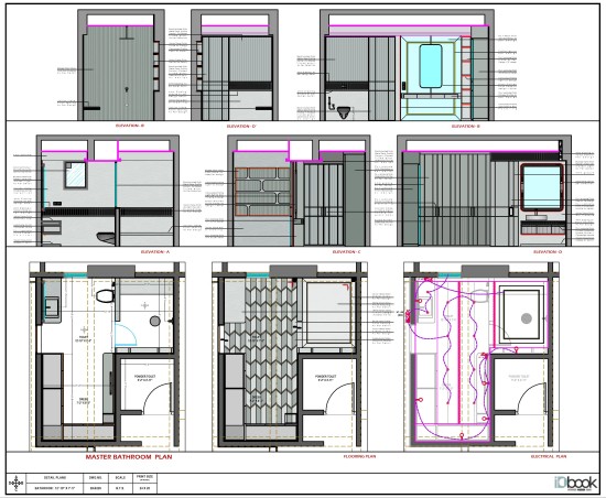
The Gilded Stone Bathroom

The design is anchored by deep black marble walls with dramatic white veining, creating a rich and sophisticated backdrop. A fluted glass partition subtly separates the wet and dry zones,allowing light to pass through while maintaining privacy and visual depth. The wall-mounted WC enhances the clean,minimal aesthetic and keeps the floor visually open.On the vanity side, warm bronze and terracotta tones balance the darker elements, adding warmth and elegance.The floating vanity with a sleek countertop appears light yet refined, complemented by a statement vertical mirror with soft integrated lighting that enhances both function and ambiance.Accent lighting within open shelves highlights accessories and adds a hotel-like luxury feel.The geometric patterned flooring ties the entire composition together, introducing movement and a modern artistic touch without overpowering the space. Overall, the bathroom feels bold, elegant, and premium, blending modern luxury with a boutique hotel experience perfect for a high-end residence or designer suite.

Category

Related Plans

Write a review

       
Design a plan with us