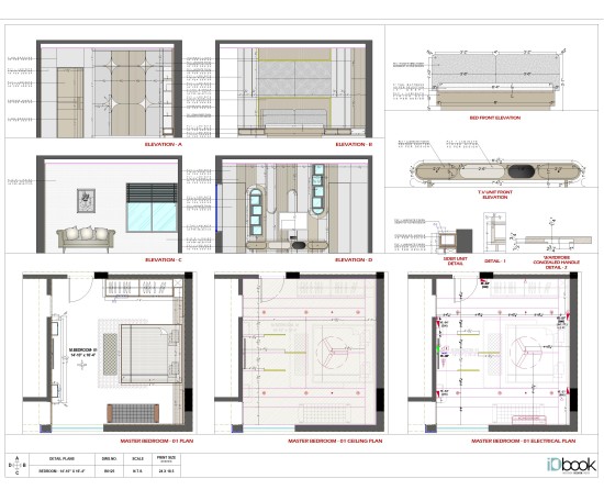
Abundant amount of materials and
sources are available to design a luxurious room. But managing
sources and placing different component
with vivid material is a process of designing luxurious interior. Here, designer done a amazing job in this room
through wall panelling to TV unit. This Tv unit
designed in Hexagonal shape which is developed with Veneer panels and a attached drawer and a
Dressing mirror makes this a unique room decor. Moreover, this bed is designed
with leather bed rest and Veneer used in bed material with this amazing
colour adoption back panel of the bed is also made of Veneer and a BPG in
Hexagon pattern which looks seemingly beautiful and sharp. It also has a White
PU wardrobe and a small study table to utilize this space big space.
3,499
2,999.00
1,999.00
2,599.00
2,199.00
2,999.00
2,499.00
2,999.00
2,199.00
1,999.00
1,999.00
2,499.00
1,999.00
2,199.00
2,999.00
1,999.00
2,499.00