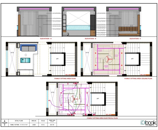
This thoughtfully designed sitting nook is a perfect blend of warmth, comfort, and personal expression. Soft neutral tones and natural wood finishes create a calm, inviting atmosphere, while subtle lighting accents add depth and visual interest. The raised platform seating and compact layout make the space feel intimate yet refined,ideal for quiet relaxation or casual conversations.A curated photo gallery wall brings a personal and storytelling element,transforming the nook into a space filled with memories and character. The clean-lined furniture, textured upholstery, and minimalist décor maintain a modern aesthetic, while natural light from the window enhances the sense of openness. Overall, this corner feels cozy, contemporary, and deeply personal—designed for moments of pause, reflection, and everyday comfort.
2,999
1,999.00
2,199.00
1,999.00
1,999.00
2,999.00
2,999.00
2,199.00
2,999.00
1,999.00
1,999.00
2,199.00
2,199.00
1,999.00
1,999.00
2,199.00